LIEU: 6313 Edlibach
ANNÉE DE REALISATION: 2011
REMIS LORS DU: Prix Lignum 2012
loading
ESSENCE DE BOIS MAJORITAIREMENT UTILISÉE: Sapin blanc
DÉTAILS DU PROJET: Construction neuve
PORTEUR DU PROJET : awip GmbH, Pirmin & Rahel Amrein-Wegmann, Oberwil b. ZugARCHITECTE/PLANIFICATEUR: AmreinHerzig Architekten GmbH, Pirmin Amrein & Claudio Herzig, Baar
EXÉCUTION DES TRAVAUX EN BOIS : Renggli AG, Thomas Nöthiger, Schötz
AUTRES:
Roger Frei Architekturfotografie, , Roger Frei, Zürich
DESCRIPTIF :
Ort
Die Ortschaft Edlibach gehört zur politischen Gemeinde Menzingen im Kanton Zug und ist in einer hügeligen Moränenlandschaft auf rund 740 M.ü.M. eingebettet.
Die schmale Parzelle liegt zwischen (Edli-) Bachtobel und Mühlestrasse und grenzt im Osten an ein im Inventar der schützenswerten Denkmäler eingetragenes Gebäudegefüge aus Sägerei mit Stampfe, Mühlehaus (Wohnhaus aus dem Jahr 1768) und Waschhaus.
Gebäude
Der minimale Strassenabstand von 4 m im Süden und der Waldabstand von 12 m im Norden waren baurechtliche Bedingungen, die einen bebaubaren Streifen von 3-4 m Tiefe erlaubt hätten. Mit einer vom Bundesgericht unterstützten Ausnahmebewilligung, wurde die Unterschreitung des Waldabstandes möglich und somit auch die Bebauung der Parzelle.
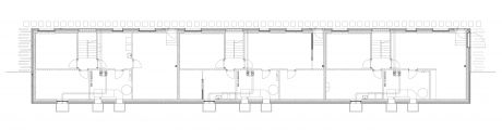
Der schlanke, nur 7.7 m Tiefe Gebäudekörper erstreckt sich über eine Länge von 44.5 m entlang der ruhigen Quartier-Erschliessungsstrasse. Öffnungen für die Garagen und grosszügige Terrassen auf verschiedenen Niveaus, mit unterschiedlicher Exposition erlauben Durchblicke Richtung Wald und brechen den für das Quartier ungewöhnlich lange Gebäudekörper auf.
Die plastische Ausformulierung der Gebäude-Silhouette ist eine direkte Folge der schmalen Parzelle und der geographischen Orientierung die es verunmöglicht, den Häusern attraktive, intime, private und erdnahe Aussenräume/Gärten zuzuweisen.
Da innerhalb des Waldabstandbereichs keine Bauten und Anlagen erlaubt sind, erfolgt die Erschliessung direkt von der Mühlestrasse, die somit zur Adresse der drei Wohneinheiten wird.
Das Bauvorhaben repräsentiert eine aufgeschlossene Einstellung der Bauherrschaft welche mit der Typologie des Reihenhauses und der damit verbundenen dichten Bauweise einen Beitrag zum schonenden Umgang mit der Ressource Land geleistet hat.
Raumprogramm
Vorgabe der Bauherrschaft war es, drei gleichwertige Häuser für Familien mit Kinder zu erstellen.
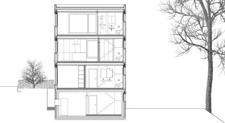
Im Sockelgeschoss sind je ein beheiztes Zimmer/Atelier, ein Technikraum, ein Waschraum, ein Kellerabteil und ein Hobbyraum mit direktem Zugang zum Aussenraum/Wald untergebracht.
Im Erdgeschoss befinden sich je zwei gedeckte Parkplätze, der Hauseingang mit Garderobe, zwei Zimmer und eine Nasszelle.
Die offenen Grundrisse im 1. Obergeschoss bieten Raum für Wohnen, Kochen, Essen und verfügen über eine Speisekammer und ein Tages-WC. Die grosszügigen Terrassen bilden gut besonnte und private Aussenräume mit Bezügen zum Wald und zur Mühlestrasse.
Im Dachgeschoss sind nochmals je ein Zimmer mit Nasszelle angeordnet, die über eine weitere Terrasse verfügen die zum Teil die Sicht auf den Zugersee ermöglichen.
Ausdruck
Die Wohnhäuser sind subtil aber in einer klaren Architektursprache in die Umgebung integriert. Die Rhythmisierung lässt die einzelnen Einheiten erkennen - die einheitliche Fassadengestaltung mit einer Holzschalung macht aus der Gesamtüberbauung einen spannenden plastischen Körper. Die hohe Anzahl an unterschiedlich dimensionierten und versetzt angeordneten Fenster nimmt der Überbauung die Strenge. Jedes Wohnhaus hat auf allen vier Seiten Fenster und somit entsprechende Aussenbezüge. Sämtliche Kellerräume sind natürlich belichtet.
Konstruktion
Auf das massiv gebaute Sockelgeschoss wurde ein dreigeschossiger Holz-Rahmen-Elementbau gestellt.
Die Wohnhäuser verfügen über eine hochwertige Gebäudehülle, eine Luft-Luft Wärmepumpe, eine kontrollierte Wohnraum-Lüftungsanlage und sind Minergie© zertifiziert.
Jede Einheit besitzt eine eigene, von den anderen unabhängige Haustechnik.
Ort
Die Ortschaft Edlibach gehört zur politischen Gemeinde Menzingen im Kanton Zug und ist in einer hügeligen Moränenlandschaft auf rund 740 M.ü.M. eingebettet.
Die schmale Parzelle liegt zwischen (Edli-) Bachtobel und Mühlestrasse und grenzt im Osten an ein im Inventar der schützenswerten Denkmäler eingetragenes Gebäudegefüge aus Sägerei mit Stampfe, Mühlehaus (Wohnhaus aus dem Jahr 1768) und Waschhaus.
Gebäude
Der minimale Strassenabstand von 4 m im Süden und der Waldabstand von 12 m im Norden waren baurechtliche Bedingungen, die einen bebaubaren Streifen von 3-4 m Tiefe erlaubt hätten. Mit einer vom Bundesgericht unterstützten Ausnahmebewilligung, wurde die Unterschreitung des Waldabstandes möglich und somit auch die Bebauung der Parzelle.
Der schlanke, nur 7.7 m Tiefe Gebäudekörper erstreckt sich über eine Länge von 44.5 m entlang der ruhigen Quartier-Erschliessungsstrasse. Öffnungen für die Garagen und grosszügige Terrassen auf verschiedenen Niveaus, mit unterschiedlicher Exposition erlauben Durchblicke Richtung Wald und brechen den für das Quartier ungewöhnlich lange Gebäudekörper auf.
Die plastische Ausformulierung der Gebäude-Silhouette ist eine direkte Folge der schmalen Parzelle und der geographischen Orientierung die es verunmöglicht, den Häusern attraktive, intime, private und erdnahe Aussenräume/Gärten zuzuweisen.
Da innerhalb des Waldabstandbereichs keine Bauten und Anlagen erlaubt sind, erfolgt die Erschliessung direkt von der Mühlestrasse, die somit zur Adresse der drei Wohneinheiten wird.
Das Bauvorhaben repräsentiert eine aufgeschlossene Einstellung der Bauherrschaft welche mit der Typologie des Reihenhauses und der damit verbundenen dichten Bauweise einen Beitrag zum schonenden Umgang mit der Ressource Land geleistet hat.
Raumprogramm
Vorgabe der Bauherrschaft war es, drei gleichwertige Häuser für Familien mit Kinder zu erstellen.
Im Sockelgeschoss sind je ein beheiztes Zimmer/Atelier, ein Technikraum, ein Waschraum, ein Kellerabteil und ein Hobbyraum mit direktem Zugang zum Aussenraum/Wald untergebracht.
Im Erdgeschoss befinden sich je zwei gedeckte Parkplätze, der Hauseingang mit Garderobe, zwei Zimmer und eine Nasszelle.
Die offenen Grundrisse im 1. Obergeschoss bieten Raum für Wohnen, Kochen, Essen und verfügen über eine Speisekammer und ein Tages-WC. Die grosszügigen Terrassen bilden gut besonnte und private Aussenräume mit Bezügen zum Wald und zur Mühlestrasse.
Im Dachgeschoss sind nochmals je ein Zimmer mit Nasszelle angeordnet, die über eine weitere Terrasse verfügen die zum Teil die Sicht auf den Zugersee ermöglichen.
Ausdruck
Die Wohnhäuser sind subtil aber in einer klaren Architektursprache in die Umgebung integriert. Die Rhythmisierung lässt die einzelnen Einheiten erkennen - die einheitliche Fassadengestaltung mit einer Holzschalung macht aus der Gesamtüberbauung einen spannenden plastischen Körper. Die hohe Anzahl an unterschiedlich dimensionierten und versetzt angeordneten Fenster nimmt der Überbauung die Strenge. Jedes Wohnhaus hat auf allen vier Seiten Fenster und somit entsprechende Aussenbezüge. Sämtliche Kellerräume sind natürlich belichtet.
Konstruktion
Auf das massiv gebaute Sockelgeschoss wurde ein dreigeschossiger Holz-Rahmen-Elementbau gestellt.
Die Wohnhäuser verfügen über eine hochwertige Gebäudehülle, eine Luft-Luft Wärmepumpe, eine kontrollierte Wohnraum-Lüftungsanlage und sind Minergie© zertifiziert.
Jede Einheit besitzt eine eigene, von den anderen unabhängige Haustechnik.

















































